Top.Mail.Ru

Тихорецкий бульвар, д. 14, к. 1

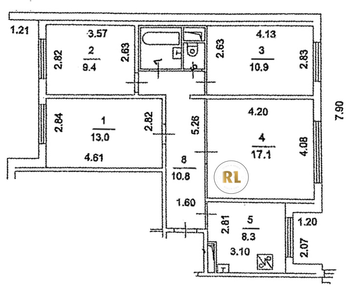
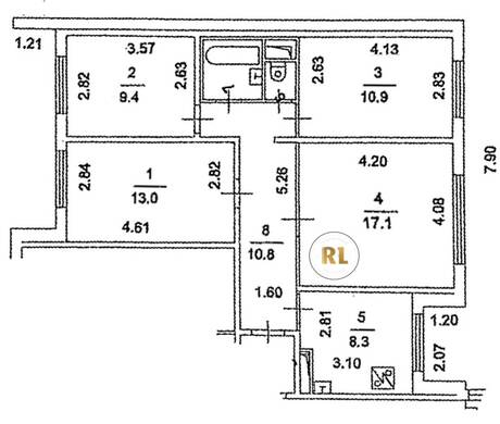
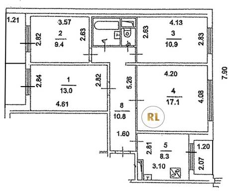
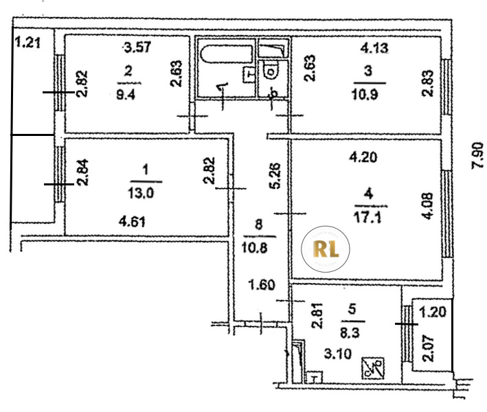
База каталог, Кол-во подъездов: 5, Имеется, П-30, Москва, Люблино, Пассажирский лифт: 10, От метро: 770, Юго-Восточный, да, Наименьшее кол-во этажей: 0, Наибольшее кол-во этажей: 12, Люблино, Кол-во помещений: 238, Кол-во нежилых помещений: 0, Год ввода в эксплуатацию: 1978, 4-комн, Кол-во жилых помещений: 238, дом 14, корпус 1, нет, да, да, да, да, да, Имеется, Грузовых лифтов: 0, Год постройки: 1978, Тихорецкий бульвар, 37.772568, 55.677742
17 700 000 Р
10 дн.
V55S677742L37S772568V
+

На карте


Условия сделки

Источник


Старт продаж