Top.Mail.Ru

Профсоюзная ул., д. 30, к. 4

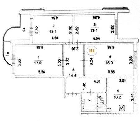
База каталог, Кол-во подъездов: 2, П-3M, Москва, Черемушки, Площадь парковки: 0, Пассажирский лифт: 2, От метро: 235, Юго-Западный, нет, Наименьшее кол-во этажей: 17, Наибольшее кол-во этажей: 17, Профсоюзная, Кол-во помещений: 136, Кол-во нежилых помещений: 1, Год ввода в эксплуатацию: 2003, 4-комн, Кол-во жилых помещений: 135, Не присвоен, дом 30, корпус 4, да, да, да, да, да, да, Грузовых лифтов: 2, Год постройки: 2003, Профсоюзная улица, 37.559451, 55.678011
Свяжитесь со мной на счет цены
10 дн.
V55S678011L37S559451V

На карте


Условия сделки

Источник


Старт продаж

Возможно заинтересует