Top.Mail.Ru

Озерная ул., д. 22

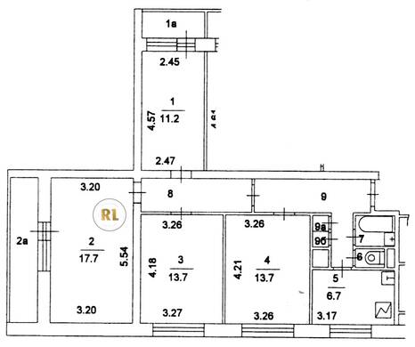
База каталог, Кол-во подъездов: 4, Имеется, I605-АМ, Москва, Очаково-Матвеевское, Площадь парковки: 384, Пассажирский лифт: 0, От метро: 950, Западный, да, Наименьшее кол-во этажей: 1, Наибольшее кол-во этажей: 5, Озёрная, Кол-во помещений: 0, Кол-во нежилых помещений: 0, Год ввода в эксплуатацию: 1961, 4-комн, Кол-во жилых помещений: 0, Не присвоен, дом 22, нет, да, да, да, да, да, Имеется, Грузовых лифтов: 0, Год постройки: 1961, Озерная улица, 37.455247, 55.678412
Свяжитесь со мной на счет цены
10 дн.
V55S678412L37S455247V

На карте


Условия сделки

Источник


Старт продаж

Возможно заинтересует