Top.Mail.Ru

улица Полбина, д. 42

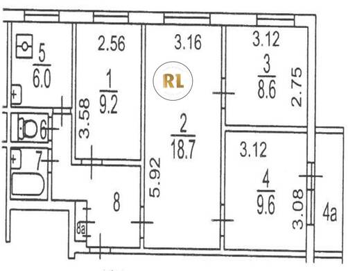
База каталог, Кол-во подъездов: 6, Отсутствует, II-49, Москва, Печатники, Площадь парковки: 0, Пассажирский лифт: 6, От метро: 1440, Юго-Восточный, нет, Наименьшее кол-во этажей: 9, Наибольшее кол-во этажей: 9, Печатники, Кол-во помещений: 213, Кол-во нежилых помещений: 0, Год ввода в эксплуатацию: 1969, 4-комн, Кол-во жилых помещений: 213, С, дом 42, нет, да, да, да, да, нет, Имеется, Грузовых лифтов: 0, Год постройки: 1969, улица Полбина, 37.728541, 55.680458
Свяжитесь со мной на счет цены
10 дн.
V55S680458L37S728541V

На карте


Условия сделки

Источник


Старт продаж

Возможно заинтересует