Top.Mail.Ru

Ленинский проспект, д. 83, к. 4

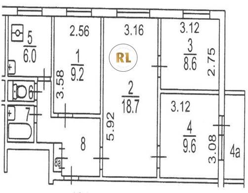
База каталог, Кол-во подъездов: 4, Имеется, II-49, Москва, Ломоносовский, Площадь парковки: 0, Пассажирский лифт: 4, От метро: 1690, Юго-Западный, нет, Наименьшее кол-во этажей: 9, Наибольшее кол-во этажей: 9, Новые Черёмушки, Кол-во помещений: 144, Кол-во нежилых помещений: 0, Год ввода в эксплуатацию: 1972, 4-комн, Кол-во жилых помещений: 144, Не присвоен, дом 83, корпус 4, нет, да, да, да, нет, нет, Имеется, Грузовых лифтов: 0, Год постройки: 1972, Ленинский проспект, 37.540227, 55.680565
Свяжитесь со мной на счет цены
10 дн.
V55S680565L37S540227V

На карте


Условия сделки

Источник


Старт продаж

Возможно заинтересует