Top.Mail.Ru

Тихая ул., д. 4

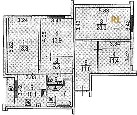
База каталог, Кол-во подъездов: 5, КОПЭ, Москва, Люблино, Площадь парковки: 0, Пассажирский лифт: 10, От метро: 1250, Юго-Восточный, нет, Наименьшее кол-во этажей: 1, Наибольшее кол-во этажей: 22, Волжская, Кол-во помещений: 441, Кол-во нежилых помещений: 7, Год ввода в эксплуатацию: 1989, 4-комн, Кол-во жилых помещений: 434, дом 4, нет, да, да, да, да, нет, Отсутствует, Грузовых лифтов: 5, Год постройки: 1989, Тихая улица, 37.741495, 55.685041
Свяжитесь со мной на счет цены
10 дн.
V55S685041L37S741495V

На карте


Условия сделки

Источник


Старт продаж

Возможно заинтересует