Top.Mail.Ru

улица Винокурова, д. 12, к. 5

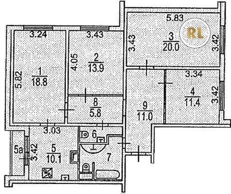
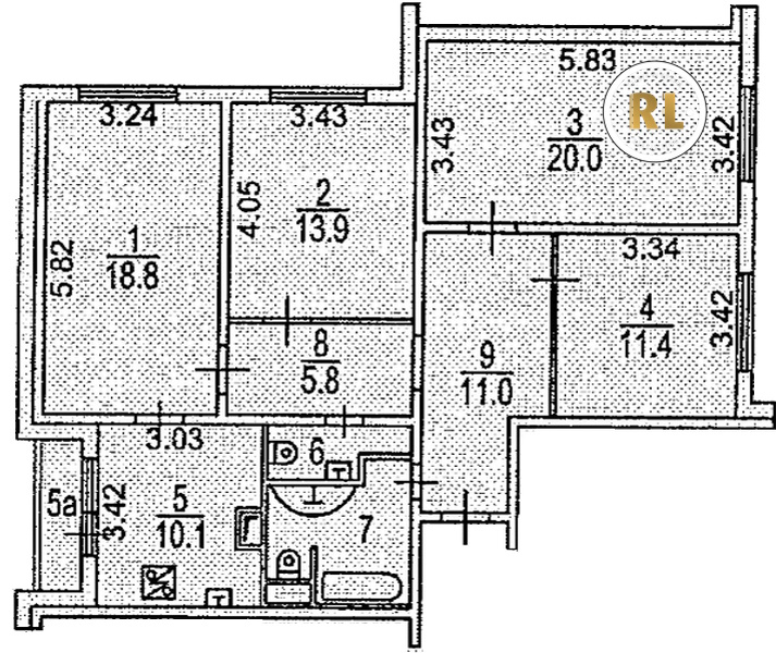
База каталог, Кол-во подъездов: 1, Имеется, КОПЭ, Москва, Академический, Площадь парковки: 0, Пассажирский лифт: 2, От метро: 1040, Юго-Западный, нет, Наименьшее кол-во этажей: 22, Наибольшее кол-во этажей: 22, Академическая, Кол-во помещений: 84, Кол-во нежилых помещений: 0, Год ввода в эксплуатацию: 2005, 4-комн, Кол-во жилых помещений: 84, D, дом 12, корпус 5, нет, да, да, да, да, да, Отсутствует, Грузовых лифтов: 1, Год постройки: 2005, улица Винокурова, 37.587901, 55.686259
Свяжитесь со мной на счет цены
10 дн.
V55S686259L37S587901V

На карте


Условия сделки

Источник


Старт продаж

Возможно заинтересует