Top.Mail.Ru

улица Полбина, д. 24

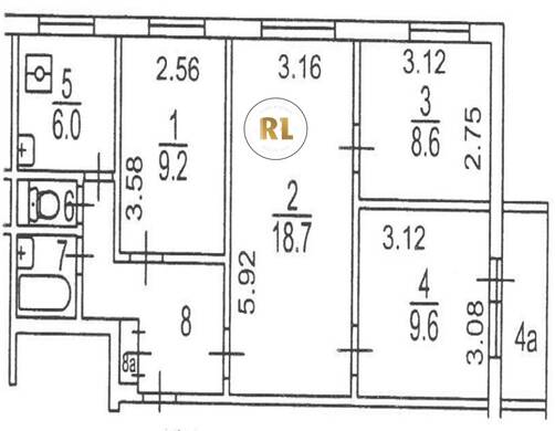
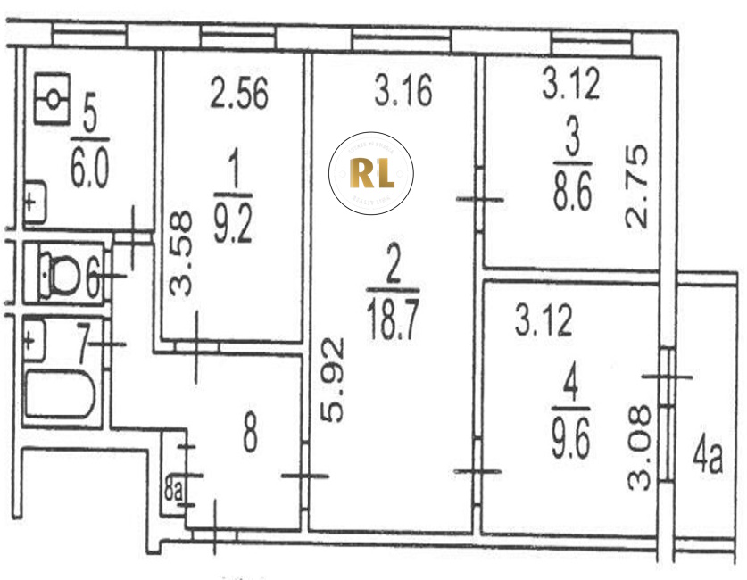
База каталог, Кол-во подъездов: 6, Отсутствует, II-49, Москва, Печатники, Площадь парковки: 0, Пассажирский лифт: 6, От метро: 830, Юго-Восточный, нет, Наименьшее кол-во этажей: 9, Наибольшее кол-во этажей: 9, Печатники, Кол-во помещений: 215, Кол-во нежилых помещений: 0, Год ввода в эксплуатацию: 1969, 4-комн, Кол-во жилых помещений: 215, D, дом 24, нет, да, да, да, да, да, Имеется, Грузовых лифтов: 0, Год постройки: 1969, улица Полбина, 37.730751, 55.686305
Свяжитесь со мной на счет цены
10 дн.
V55S686305L37S730751V

На карте


Условия сделки

Источник


Старт продаж

Возможно заинтересует