Top.Mail.Ru

Шоссейная ул., д. 18

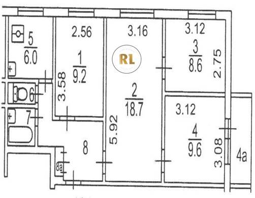
База каталог, Кол-во подъездов: 6, Имеется, II-49, Москва, Печатники, Площадь парковки: 0, Пассажирский лифт: 6, От метро: 710, Юго-Восточный, нет, Наименьшее кол-во этажей: 9, Наибольшее кол-во этажей: 9, Печатники, Кол-во помещений: 215, Кол-во нежилых помещений: 0, Год ввода в эксплуатацию: 1970, 4-комн, Кол-во жилых помещений: 215, С, дом 18, нет, да, да, да, да, да, Имеется, Грузовых лифтов: 0, Год постройки: 1970, Шоссейная улица, 37.723520, 55.687330
Свяжитесь со мной на счет цены
10 дн.
V55S687330L37S723520V

На карте


Условия сделки

Источник


Старт продаж

Возможно заинтересует