Top.Mail.Ru

Шоссейная ул., д. 3

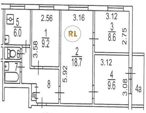
База каталог, Кол-во подъездов: 8, Отсутствует, II-49, Москва, Печатники, Площадь парковки: 0, Пассажирский лифт: 8, От метро: 264, Юго-Восточный, нет, Наименьшее кол-во этажей: 9, Наибольшее кол-во этажей: 9, Печатники, Кол-во помещений: 289, Кол-во нежилых помещений: 2, Год ввода в эксплуатацию: 1969, 4-комн, Кол-во жилых помещений: 287, D, дом 3, да, да, да, да, да, да, Имеется, Грузовых лифтов: 0, Год постройки: 1969, Шоссейная улица, 37.728559, 55.690567
15 900 000 Р
10 дн.
V55S690567L37S728559V
+

На карте


Условия сделки

Источник


Старт продаж