Top.Mail.Ru

Большая Черемушкинская ул., д. 2, к. 1

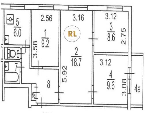
База каталог, Кол-во подъездов: 6, Имеется, II-49-06, Москва, Академический, Площадь парковки: 0, Пассажирский лифт: 6, От метро: 680, Юго-Западный, нет, Наименьшее кол-во этажей: 9, Наибольшее кол-во этажей: 9, Крымская, Кол-во помещений: 215, Кол-во нежилых помещений: 0, Год ввода в эксплуатацию: 1965, 4-комн, Кол-во жилых помещений: 215, D, дом 2, корпус 1, нет, да, да, да, да, да, Отсутствует, Грузовых лифтов: 0, Год постройки: 1965, Большая Черемушкинская улица, 37.597019, 55.691095
Свяжитесь со мной на счет цены
10 дн.
V55S691095L37S597019V

На карте


Условия сделки

Источник


Старт продаж

Возможно заинтересует