Top.Mail.Ru

Шоссейная ул., д. 2, к. 2

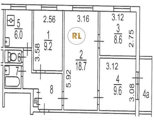
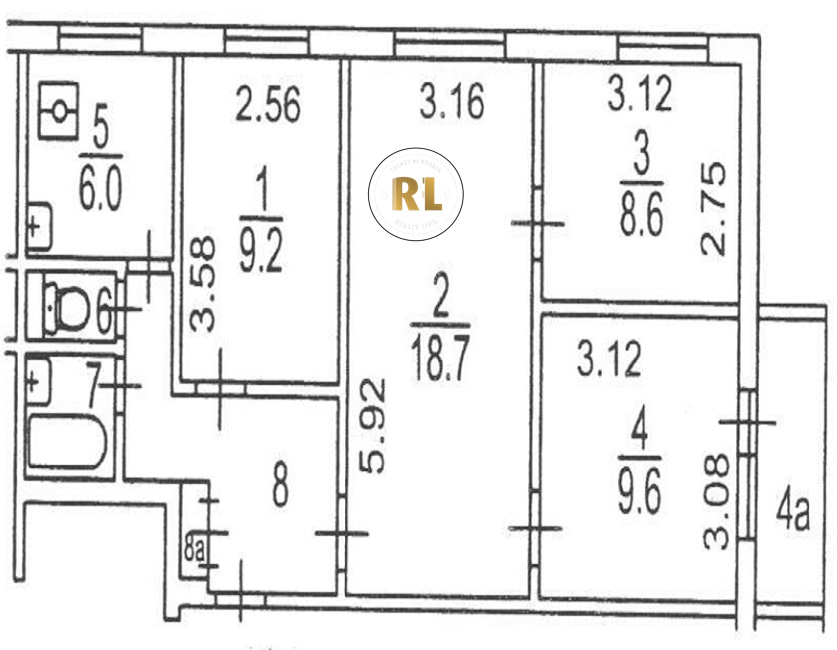
База каталог, Кол-во подъездов: 4, Отсутствует, II-49, Москва, Печатники, Площадь парковки: 0, Пассажирский лифт: 4, От метро: 216, Юго-Восточный, нет, Наименьшее кол-во этажей: 9, Наибольшее кол-во этажей: 9, Печатники, Кол-во помещений: 144, Кол-во нежилых помещений: 0, Год ввода в эксплуатацию: 1973, 4-комн, Кол-во жилых помещений: 144, D, дом 2, корпус 2, да, да, да, да, да, да, Имеется, Грузовых лифтов: 0, Год постройки: 1973, Шоссейная улица, 37.725226, 55.692805
Свяжитесь со мной на счет цены
10 дн.
V55S692805L37S725226V

На карте


Условия сделки

Источник


Старт продаж

Возможно заинтересует