Top.Mail.Ru

Мичуринский проспект, д. 27, к. 2

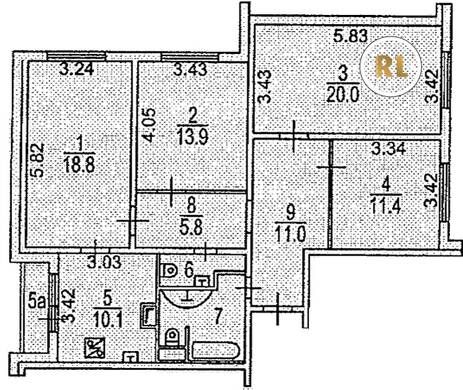
База каталог, Кол-во подъездов: 3, Имеется, КОПЭ, Москва, Раменки, Площадь парковки: 0, Пассажирский лифт: 6, От метро: 217, Западный, нет, Наименьшее кол-во этажей: 0, Наибольшее кол-во этажей: 22, Раменки, Кол-во помещений: 254, Кол-во нежилых помещений: 2, Год ввода в эксплуатацию: 1996, 4-комн, Кол-во жилых помещений: 252, Не присвоен, дом 27, корпус 2, да, да, да, да, да, да, Имеется, Грузовых лифтов: 3, Год постройки: 1996, Мичуринский проспект, 37.501429, 55.696884
Свяжитесь со мной на счет цены
10 дн.
V55S696884L37S501429V

На карте


Условия сделки

Источник


Старт продаж

Возможно заинтересует