Top.Mail.Ru

Ферганский проезд, д. 4

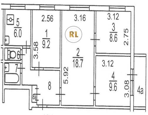
База каталог, Кол-во подъездов: 8, II-49Д, Москва, Выхино-Жулебино, Площадь парковки: 0, Пассажирский лифт: 8, От метро: 990, Юго-Восточный, нет, Наименьшее кол-во этажей: 9, Наибольшее кол-во этажей: 9, Юго-Восточная, Кол-во помещений: 288, Кол-во нежилых помещений: 1, Год ввода в эксплуатацию: 1969, 4-комн, Кол-во жилых помещений: 287, дом 4, нет, да, да, да, да, да, Имеется, Грузовых лифтов: 0, Год постройки: 1968, Ферганский проезд, 37.825856, 55.698589
Свяжитесь со мной на счет цены
10 дн.
V55S698589L37S825856V

На карте


Условия сделки

Источник


Старт продаж

Возможно заинтересует