Top.Mail.Ru

Пронская ул., д. 11, к. 2

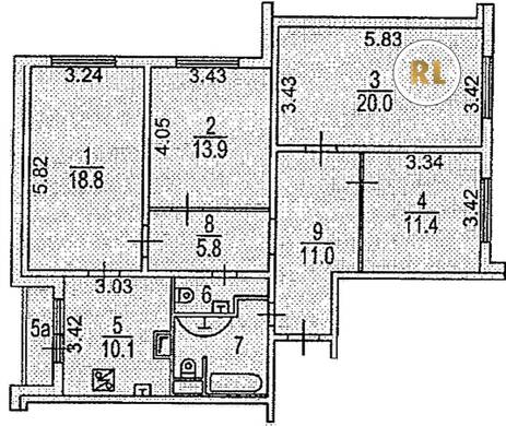
База каталог, Кол-во подъездов: 3, КОПЭ, Москва, Выхино-Жулебино, Площадь парковки: 0, Пассажирский лифт: 3, От метро: 420, Юго-Восточный, нет, Наименьшее кол-во этажей: 1, Наибольшее кол-во этажей: 18, Лермонтовский проспект, Кол-во помещений: 177, Кол-во нежилых помещений: 0, Год ввода в эксплуатацию: 1993, 4-комн, Кол-во жилых помещений: 177, Не присвоен, дом 11, корпус 2, да, да, да, да, да, да, Имеется, Грузовых лифтов: 3, Год постройки: 1993, Пронская улица, 37.847487, 55.699781
Свяжитесь со мной на счет цены
10 дн.
V55S699781L37S847487V

На карте


Условия сделки

Источник


Старт продаж

Возможно заинтересует