Top.Mail.Ru

Пронская ул., д. 9, к. 2

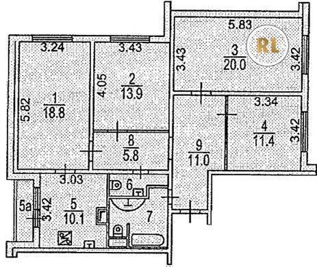
База каталог, Кол-во подъездов: 2, Имеется, КОПЭ, Москва, Выхино-Жулебино, Площадь парковки: 0, Пассажирский лифт: 4, От метро: 460, Юго-Восточный, нет, Наименьшее кол-во этажей: 1, Наибольшее кол-во этажей: 22, Лермонтовский проспект, Кол-во помещений: 172, Кол-во нежилых помещений: 4, Год ввода в эксплуатацию: 1992, 4-комн, Кол-во жилых помещений: 168, Не присвоен, дом 9, корпус 2, да, да, да, да, да, да, Имеется, Грузовых лифтов: 2, Год постройки: 1992, Пронская улица, 37.847846, 55.700633
Свяжитесь со мной на счет цены
10 дн.
V55S700633L37S847846V

На карте


Условия сделки

Источник


Старт продаж

Возможно заинтересует