Top.Mail.Ru

Ферганская ул., д. 28/7

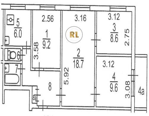
База каталог, Кол-во подъездов: 8, Отсутствует, II-49-08М, Москва, Выхино-Жулебино, Площадь парковки: 0, Пассажирский лифт: 8, От метро: 650, Юго-Восточный, нет, Наименьшее кол-во этажей: 9, Наибольшее кол-во этажей: 9, Юго-Восточная, Кол-во помещений: 289, Кол-во нежилых помещений: 2, Год ввода в эксплуатацию: 1971, 4-комн, Кол-во жилых помещений: 287, D, дом 28/7, нет, да, да, да, да, да, Имеется, Грузовых лифтов: 0, Год постройки: 1971, Ферганская улица, 37.824930, 55.701136
Свяжитесь со мной на счет цены
10 дн.
V55S701136L37S824930V

На карте


Условия сделки

Источник


Старт продаж

Возможно заинтересует