Top.Mail.Ru

квартал Самаркандский Бульвар 137а, к. 1

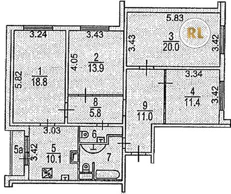
База каталог, Кол-во подъездов: 4, Отсутствует, КОПЭ, Москва, Выхино-Жулебино, Пассажирский лифт: 4, От метро: 550, Юго-Восточный, да, Наименьшее кол-во этажей: 5, Наибольшее кол-во этажей: 5, Юго-Восточная, Кол-во помещений: 80, Кол-во нежилых помещений: 0, Год ввода в эксплуатацию: 1962, 4-комн, Кол-во жилых помещений: 80, корпус 1, да, да, да, да, да, да, Имеется, Грузовых лифтов: 2, Год постройки: 1962, квартал Самаркандский Бульвар 137а, 37.822784, 55.701932
Свяжитесь со мной на счет цены
10 дн.
V55S701932L37S822784V

На карте


Условия сделки

Источник


Старт продаж

Возможно заинтересует