Top.Mail.Ru

Матвеевская ул., д. 1

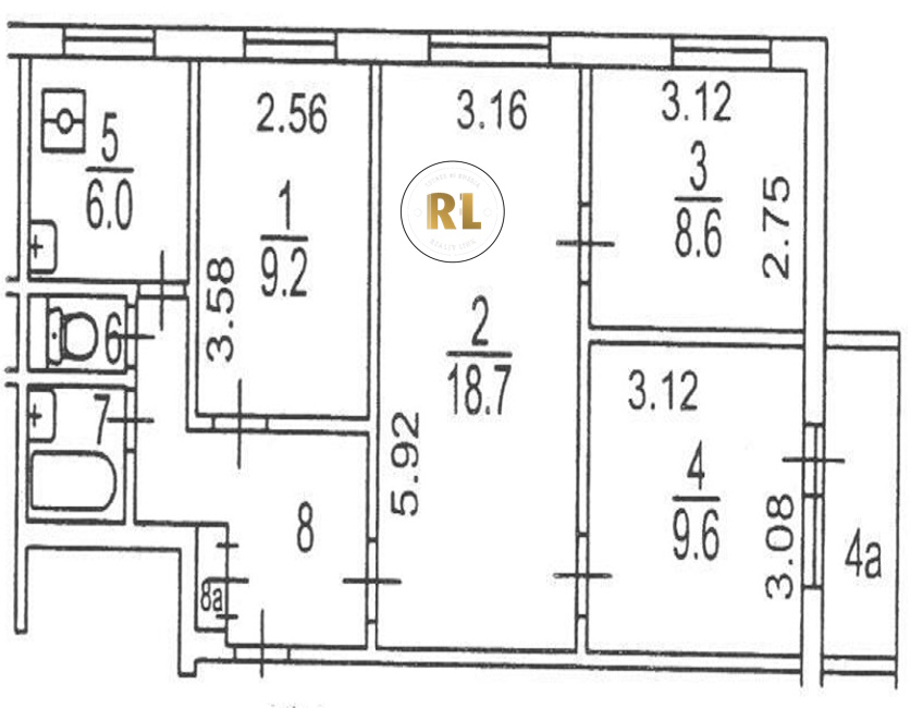
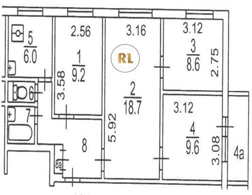
База каталог, Кол-во подъездов: 12, Имеется, II-49Д, Москва, Очаково-Матвеевское, Площадь парковки: 1020, Пассажирский лифт: 12, От метро: 1050, Западный, да, Наименьшее кол-во этажей: 1, Наибольшее кол-во этажей: 9, Аминьевская, Кол-во помещений: 0, Кол-во нежилых помещений: 0, Год ввода в эксплуатацию: 1968, 4-комн, Кол-во жилых помещений: 0, Не присвоен, дом 1, нет, да, да, да, да, да, Имеется, Грузовых лифтов: 0, Год постройки: 1968, Матвеевская улица, 37.463035, 55.702323
Свяжитесь со мной на счет цены
10 дн.
V55S702323L37S463035V

На карте


Условия сделки

Источник


Старт продаж

Возможно заинтересует