Top.Mail.Ru

квартал Самаркандский Бульвар 134а, к. 5

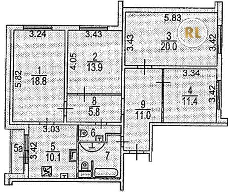
База каталог, Кол-во подъездов: 2, КОПЭ, Москва, Выхино-Жулебино, Площадь парковки: 0, Пассажирский лифт: 4, От метро: 660, Юго-Восточный, нет, Наименьшее кол-во этажей: 22, Наибольшее кол-во этажей: 22, Юго-Восточная, Кол-во помещений: 171, Кол-во нежилых помещений: 3, Год ввода в эксплуатацию: 1997, 4-комн, Кол-во жилых помещений: 168, корпус 5, нет, да, да, да, да, да, Имеется, Грузовых лифтов: 2, Год постройки: 1997, квартал Самаркандский Бульвар 134а, 37.825883, 55.703621
Свяжитесь со мной на счет цены
10 дн.
V55S703621L37S825883V

На карте


Условия сделки

Источник


Старт продаж

Возможно заинтересует