Top.Mail.Ru

Ферганская ул., д. 24

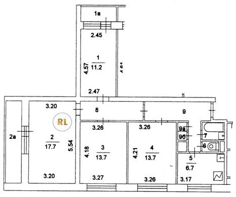
База каталог, Кол-во помещений: 288, I605-АМ, Москва, Выхино-Жулебино, Площадь парковки: 0, Пассажирский лифт: 8, От метро: 245, Юго-Восточный, нет, Наименьшее кол-во этажей: 9, Наибольшее кол-во этажей: 9, Юго-Восточная, Кол-во подъездов: 8, Год ввода в эксплуатацию: 1968, Кол-во нежилых помещений: 1, 4-комн, Кол-во жилых помещений: 287, дом 24, да, да, да, да, да, да, Грузовых лифтов: 0, Год постройки: 1968, Ферганская улица, 37.820538, 55.703748
Свяжитесь со мной на счет цены
10 дн.
V55S703748L37S820538V

На карте


Условия сделки

Источник


Старт продаж

Возможно заинтересует