Top.Mail.Ru

улица Липчанского, д. 6

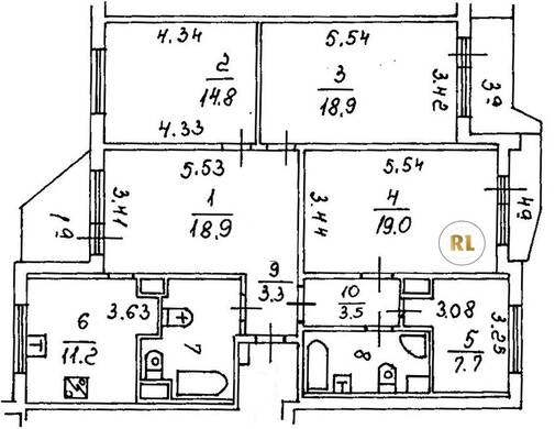
База каталог, Кол-во подъездов: 5, Имеется, П-44К, Москва, Некрасовка, Площадь парковки: 9137, Пассажирский лифт: 5, От метро: 710, Юго-Восточный, да, Наименьшее кол-во этажей: 17, Наибольшее кол-во этажей: 17, Некрасовка, Кол-во помещений: 325, Кол-во нежилых помещений: 5, Год ввода в эксплуатацию: 2016, 4-комн, Кол-во жилых помещений: 320, В+, дом 6, нет, да, да, да, да, да, Имеется, Грузовых лифтов: 5, Год постройки: 2015, улица Липчанского, 37.937525, 55.704286
Свяжитесь со мной на счет цены
10 дн.
V55S704286L37S937525V

На карте


Условия сделки

Источник


Старт продаж

Возможно заинтересует