Top.Mail.Ru

Самаркандский бульвар, д. 10, к. 1

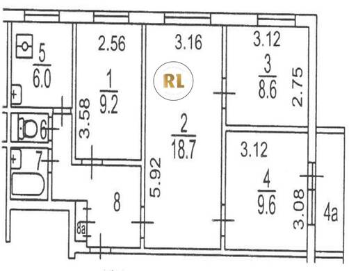
База каталог, Кол-во подъездов: 4, Отсутствует, II-49Д, Москва, Выхино-Жулебино, Пассажирский лифт: 4, От метро: 690, Юго-Восточный, да, Наименьшее кол-во этажей: 1, Наибольшее кол-во этажей: 9, Юго-Восточная, Кол-во помещений: 145, Кол-во нежилых помещений: 1, Год ввода в эксплуатацию: 1969, 4-комн, Кол-во жилых помещений: 144, E, дом 10, корпус 1, нет, да, да, да, да, да, Имеется, Грузовых лифтов: 0, Год постройки: 1969, Самаркандский бульвар, 37.826727, 55.705468
Свяжитесь со мной на счет цены
10 дн.
V55S705468L37S826727V

На карте


Условия сделки

Источник


Старт продаж

Возможно заинтересует