Top.Mail.Ru

Матвеевская ул., д. 38

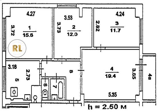
База каталог, Кол-во подъездов: 3, Отсутствует, IМГ-601Д, Москва, Очаково-Матвеевское, Площадь парковки: 0, Пассажирский лифт: 3, От метро: 1260, Западный, нет, Наименьшее кол-во этажей: 1, Наибольшее кол-во этажей: 16, Аминьевская, Кол-во помещений: 0, Кол-во нежилых помещений: 0, Год ввода в эксплуатацию: 1974, 4-комн, Кол-во жилых помещений: 0, Не присвоен, дом 38, нет, да, да, да, да, нет, Отсутствует, Грузовых лифтов: 3, Год постройки: 1974, Матвеевская улица, 37.460161, 55.705772
Свяжитесь со мной на счет цены
10 дн.
V55S705772L37S460161V

На карте


Условия сделки

Источник


Старт продаж

Возможно заинтересует