Top.Mail.Ru

Самаркандский бульвар, д. 10, к. 2

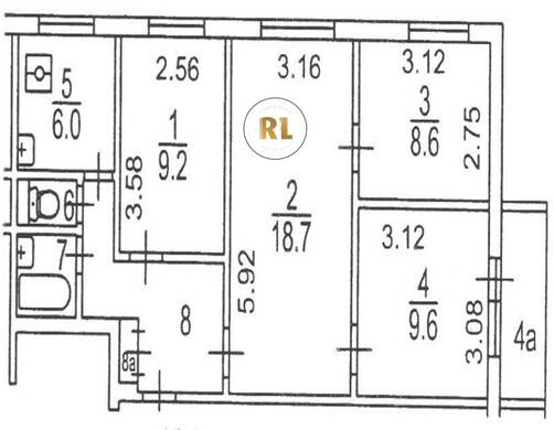
База каталог, Кол-во подъездов: 6, Отсутствует, II-49Д, Москва, Выхино-Жулебино, Пассажирский лифт: 6, От метро: 710, Юго-Восточный, да, Наименьшее кол-во этажей: 1, Наибольшее кол-во этажей: 9, Юго-Восточная, Кол-во помещений: 216, Кол-во нежилых помещений: 1, Год ввода в эксплуатацию: 1969, 4-комн, Кол-во жилых помещений: 215, E, дом 10, корпус 2, нет, да, да, да, да, да, Имеется, Грузовых лифтов: 0, Год постройки: 1969, Самаркандский бульвар, 37.826305, 55.706518
Свяжитесь со мной на счет цены
10 дн.
V55S706518L37S826305V

На карте


Условия сделки

Источник


Старт продаж

Возможно заинтересует