Top.Mail.Ru

Покровская ул., д. 41

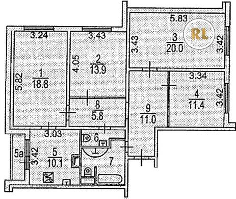
База каталог, Кол-во подъездов: 2, Отсутствует, КОПЭ, Москва, Некрасовка, Площадь парковки: 0, Пассажирский лифт: 4, От метро: 710, Юго-Восточный, нет, Наименьшее кол-во этажей: 1, Наибольшее кол-во этажей: 22, Некрасовка, Кол-во помещений: 174, Кол-во нежилых помещений: 0, Год ввода в эксплуатацию: 2009, 4-комн, Кол-во жилых помещений: 174, В, дом 41, нет, да, да, да, да, да, Отсутствует, Грузовых лифтов: 2, Год постройки: 2009, Покровская улица, 37.917780, 55.706974
Свяжитесь со мной на счет цены
10 дн.
V55S706974L37S917780V

На карте


Условия сделки

Источник


Старт продаж

Возможно заинтересует