Top.Mail.Ru

Беловежская ул., д. 17

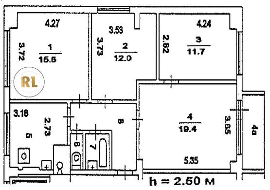
База каталог, Кол-во подъездов: 1, Отсутствует, 1-МГ-601, Москва, Можайский, Площадь парковки: 0, Пассажирский лифт: 1, От метро: 4000, Западный, нет, Наименьшее кол-во этажей: 0, Наибольшее кол-во этажей: 16, Молодёжная, Кол-во помещений: 111, Кол-во нежилых помещений: 0, Год ввода в эксплуатацию: 1968, 4-комн, Кол-во жилых помещений: 111, Не присвоен, дом 17, нет, нет, нет, нет, нет, нет, Имеется, Грузовых лифтов: 1, Год постройки: 1968, Беловежская улица, 37.396371, 55.714019
Свяжитесь со мной на счет цены
10 дн.
V55S714019L37S396371V

На карте


Условия сделки

Источник


Старт продаж

Возможно заинтересует