Top.Mail.Ru

Инициативная ул., д. 10, к. 1

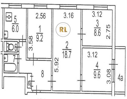
База каталог, Кол-во подъездов: 3, II-49Д, Москва, Фили-Давыдково, Пассажирский лифт: 6, От метро: 520, Западный, да, Наименьшее кол-во этажей: 9, Наибольшее кол-во этажей: 9, Давыдково, Кол-во помещений: 212, Кол-во нежилых помещений: 0, Год ввода в эксплуатацию: 1972, 4-комн, Кол-во жилых помещений: 212, дом 10, корпус 1, да, да, да, да, да, да, Грузовых лифтов: 0, Год постройки: 1972, Инициативная улица, 37.457520, 55.716554
Свяжитесь со мной на счет цены
10 дн.
V55S716554L37S457520V

На карте


Условия сделки

Источник


Старт продаж

Возможно заинтересует