Top.Mail.Ru

Вешняковская ул., д. 41, к. 1

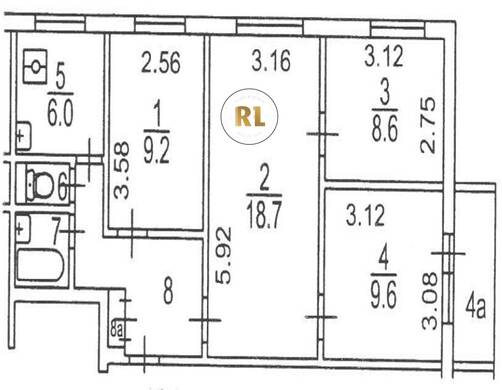
База каталог, Кол-во подъездов: 6, Имеется, II-49-06-ЮД, Москва, Вешняки, Площадь парковки: 0, Пассажирский лифт: 6, От метро: 690, Восточный, нет, Наименьшее кол-во этажей: 9, Наибольшее кол-во этажей: 9, Выхино, Кол-во помещений: 215, Кол-во нежилых помещений: 0, Год ввода в эксплуатацию: 1971, 4-комн, Кол-во жилых помещений: 215, E, дом 41, корпус 1, нет, да, да, да, да, да, Имеется, Грузовых лифтов: 0, Год постройки: 1971, Вешняковская улица, 37.822694, 55.718314
Свяжитесь со мной на счет цены
10 дн.
V55S718314L37S822694V

На карте


Условия сделки

Источник


Старт продаж

Возможно заинтересует