Top.Mail.Ru

улица Молдагуловой, д. 28, к. 4

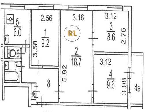
База каталог, Кол-во подъездов: 4, II-49Д, Москва, Вешняки, Пассажирский лифт: 4, От метро: 1070, Восточный, да, Наименьшее кол-во этажей: 9, Наибольшее кол-во этажей: 9, Выхино, Кол-во помещений: 144, Кол-во нежилых помещений: 0, Год ввода в эксплуатацию: 1971, 4-комн, Кол-во жилых помещений: 144, дом 28, корпус 4, нет, да, да, да, да, да, Грузовых лифтов: 0, Год постройки: 1971, улица Молдагуловой, 37.827886, 55.718314
Свяжитесь со мной на счет цены
10 дн.
V55S718314L37S827886V

На карте


Условия сделки

Источник


Старт продаж

Возможно заинтересует