Top.Mail.Ru

улица Молдагуловой, д. 11, к. 1

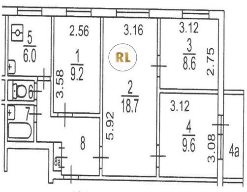
База каталог, Кол-во подъездов: 4, II-49-04/Ю, Москва, Вешняки, Площадь парковки: 0, Пассажирский лифт: 4, От метро: 1180, Восточный, нет, Наименьшее кол-во этажей: 9, Наибольшее кол-во этажей: 9, Выхино, Кол-во помещений: 143, Кол-во нежилых помещений: 0, Год ввода в эксплуатацию: 1971, 4-комн, Кол-во жилых помещений: 143, E, дом 11, корпус 1, нет, да, да, да, да, нет, Имеется, Грузовых лифтов: 0, Год постройки: 1971, улица Молдагуловой, 37.827742, 55.721422
Свяжитесь со мной на счет цены
10 дн.
V55S721422L37S827742V

На карте


Условия сделки

Источник


Старт продаж

Возможно заинтересует