Top.Mail.Ru

Давыдковская ул., д. 12, к. 4

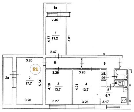
База каталог, Кол-во подъездов: 5, I605-АМ, Москва, Фили-Давыдково, Площадь парковки: 0, Пассажирский лифт: 0, От метро: 1080, Западный, нет, Наименьшее кол-во этажей: 1, Наибольшее кол-во этажей: 5, Славянский бульвар, Кол-во помещений: 85, Кол-во нежилых помещений: 0, Год ввода в эксплуатацию: 1966, 4-комн, Кол-во жилых помещений: 85, А, дом 12, корпус 4, нет, да, да, да, да, да, Грузовых лифтов: 0, Год постройки: 1966, Давыдковская улица, 37.469180, 55.722025
Свяжитесь со мной на счет цены
10 дн.
V55S722025L37S469180V

На карте


Условия сделки

Источник


Старт продаж

Возможно заинтересует