Top.Mail.Ru

Кременчугская ул., д. 5, к. 3

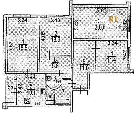
База каталог, Кол-во подъездов: 4, КОПЭ, Москва, Фили-Давыдково, Площадь парковки: 0, Пассажирский лифт: 8, От метро: 1220, Западный, нет, Наименьшее кол-во этажей: 1, Наибольшее кол-во этажей: 22, Славянский бульвар, Кол-во помещений: 341, Кол-во нежилых помещений: 5, Год ввода в эксплуатацию: 2005, 4-комн, Кол-во жилых помещений: 336, А, дом 5, корпус 3, нет, да, да, да, да, нет, Грузовых лифтов: 4, Год постройки: 2005, Кременчугская улица, 37.464221, 55.722390
Свяжитесь со мной на счет цены
10 дн.
V55S722390L37S464221V

На карте


Условия сделки

Источник


Старт продаж

Возможно заинтересует