Top.Mail.Ru

Кременчугская ул., д. 5, к. 1

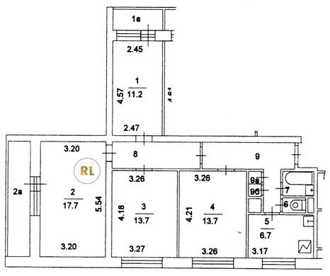
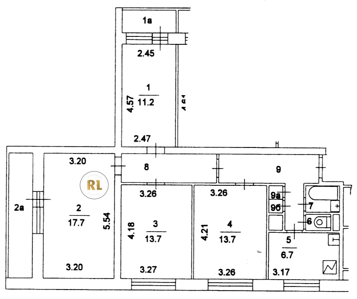
База каталог, Кол-во подъездов: 12, I605-АМ, Москва, Фили-Давыдково, Площадь парковки: 0, Пассажирский лифт: 0, От метро: 1270, Западный, нет, Наименьшее кол-во этажей: 1, Наибольшее кол-во этажей: 5, Славянский бульвар, Кол-во помещений: 238, Кол-во нежилых помещений: 0, Год ввода в эксплуатацию: 1966, 4-комн, Кол-во жилых помещений: 238, А, дом 5, корпус 1, нет, да, да, да, да, нет, Имеется, Грузовых лифтов: 0, Год постройки: 1966, Кременчугская улица, 37.462074, 55.723095
Свяжитесь со мной на счет цены
10 дн.
V55S723095L37S462074V

На карте


Условия сделки

Источник


Старт продаж

Возможно заинтересует