Top.Mail.Ru

улица Красный Казанец, д. 3, к. 3

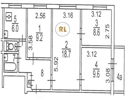
База каталог, Кол-во подъездов: 4, II-49Д, Москва, Вешняки, Площадь парковки: 0, Пассажирский лифт: 4, От метро: 1250, Восточный, нет, Наименьшее кол-во этажей: 9, Наибольшее кол-во этажей: 9, Выхино, Кол-во помещений: 139, Кол-во нежилых помещений: 0, Год ввода в эксплуатацию: 1970, 4-комн, Кол-во жилых помещений: 139, E, дом 3, корпус 3, нет, да, да, да, да, нет, Имеется, Грузовых лифтов: 0, Год постройки: 1970, улица Красный Казанец, 37.806883, 55.723136
Свяжитесь со мной на счет цены
10 дн.
V55S723136L37S806883V

На карте


Условия сделки

Источник


Старт продаж

Возможно заинтересует