Top.Mail.Ru

Кременчугская ул., д. 3, к. 2

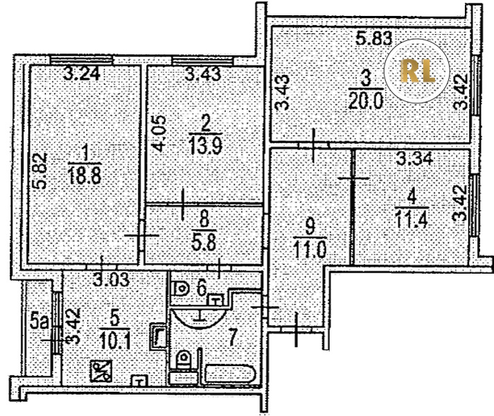
База каталог, Кол-во подъездов: 4, КОПЭ, Москва, Фили-Давыдково, Площадь парковки: 0, Пассажирский лифт: 4, От метро: 1100, Западный, нет, Наименьшее кол-во этажей: 1, Наибольшее кол-во этажей: 22, Славянский бульвар, Кол-во помещений: 339, Кол-во нежилых помещений: 3, Год ввода в эксплуатацию: 2006, 4-комн, Кол-во жилых помещений: 336, А, дом 3, корпус 2, нет, да, да, да, да, нет, Имеется, Грузовых лифтов: 4, Год постройки: 2006, Кременчугская улица, 37.462981, 55.724109
Свяжитесь со мной на счет цены
10 дн.
V55S724109L37S462981V

На карте


Условия сделки

Источник


Старт продаж

Возможно заинтересует