Top.Mail.Ru

Кременчугская ул., д. 3, к. 4

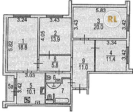
База каталог, Кол-во подъездов: 3, КОПЭ, Москва, Фили-Давыдково, Площадь парковки: 0, Пассажирский лифт: 6, От метро: 1020, Западный, нет, Наименьшее кол-во этажей: 1, Наибольшее кол-во этажей: 22, Славянский бульвар, Кол-во помещений: 255, Кол-во нежилых помещений: 3, Год ввода в эксплуатацию: 2007, 4-комн, Кол-во жилых помещений: 252, А, дом 3, корпус 4, нет, да, да, да, да, да, Грузовых лифтов: 3, Год постройки: 2007, Кременчугская улица, 37.465299, 55.724221
Свяжитесь со мной на счет цены
10 дн.
V55S724221L37S465299V

На карте


Условия сделки

Источник


Старт продаж

Возможно заинтересует