Top.Mail.Ru

Снайперская ул., д. 6, к. 3

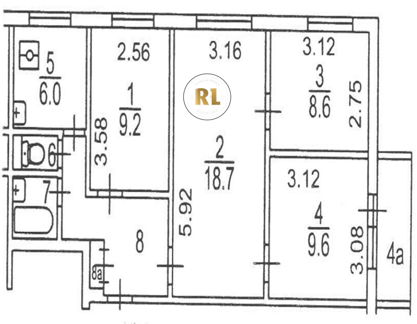
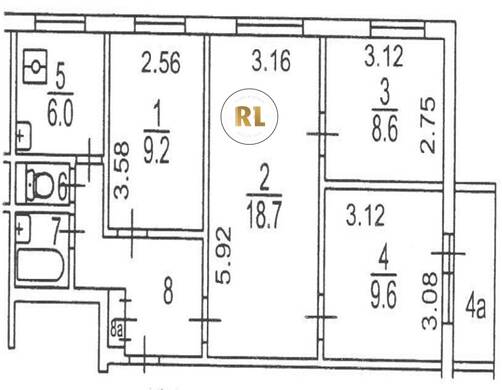
База каталог, Кол-во подъездов: 4, Отсутствует, II-49Д, Москва, Вешняки, Площадь парковки: 0, Пассажирский лифт: 4, От метро: 1230, Восточный, нет, Наименьшее кол-во этажей: 9, Наибольшее кол-во этажей: 9, Выхино, Кол-во помещений: 144, Кол-во нежилых помещений: 0, Год ввода в эксплуатацию: 1970, 4-комн, Кол-во жилых помещений: 144, Не присвоен, дом 6, корпус 3, нет, да, да, да, да, нет, Отсутствует, Грузовых лифтов: 0, Год постройки: 1970, Снайперская улица, 37.810018, 55.724221
Свяжитесь со мной на счет цены
10 дн.
V55S724221L37S810018V

На карте


Условия сделки

Источник


Старт продаж

Возможно заинтересует