Top.Mail.Ru

улица Красный Казанец, д. 3, к. 6

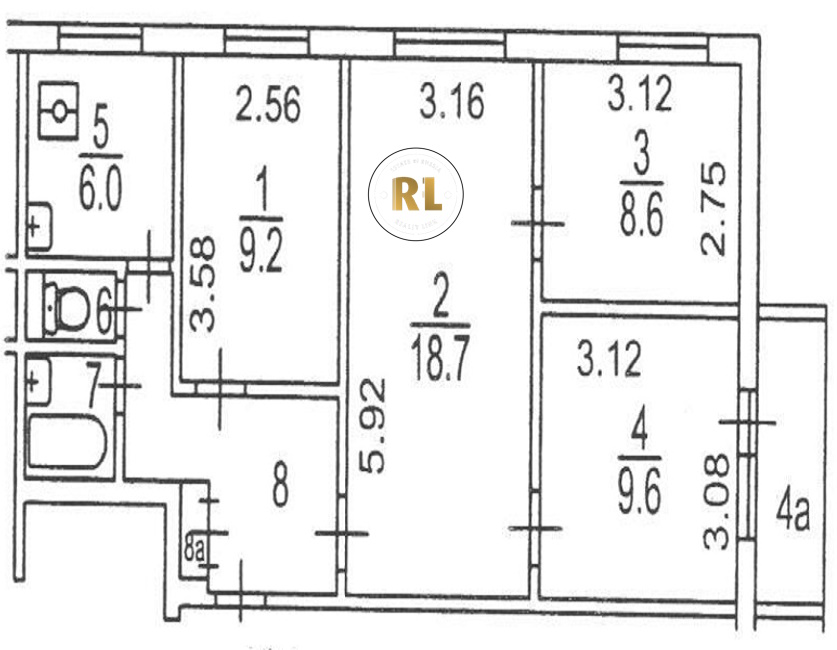
База каталог, Кол-во нежилых помещений: 0, II-49-08/Ю, Москва, Вешняки, Пассажирский лифт: 4, От метро: 1330, Восточный, да, Наименьшее кол-во этажей: 9, Наибольшее кол-во этажей: 9, Выхино, Кол-во помещений: 144, Кол-во подъездов: 4, 4-комн, Год ввода в эксплуатацию: 1970, Кол-во жилых помещений: 144, Не присвоен, дом 3, корпус 6, нет, да, да, да, да, нет, Имеется, Грузовых лифтов: 0, Год постройки: 1970, улица Красный Казанец, 37.807916, 55.724784
Свяжитесь со мной на счет цены
10 дн.
V55S724784L37S807916V

На карте


Условия сделки

Источник


Старт продаж

Возможно заинтересует