Top.Mail.Ru

улица Молдагуловой, д. 10, к. 4

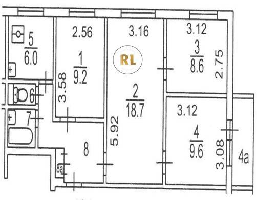
База каталог, Кол-во подъездов: 6, Имеется, II-49Д, Москва, Вешняки, Площадь парковки: 0, Пассажирский лифт: 6, От метро: 1450, Восточный, нет, Наименьшее кол-во этажей: 9, Наибольшее кол-во этажей: 9, Выхино, Кол-во помещений: 215, Кол-во нежилых помещений: 0, Год ввода в эксплуатацию: 1970, 4-комн, Кол-во жилых помещений: 215, D, дом 10, корпус 4, нет, да, да, да, да, нет, Имеется, Грузовых лифтов: 0, Год постройки: 1970, улица Молдагуловой, 37.807728, 55.726046
Свяжитесь со мной на счет цены
10 дн.
V55S726046L37S807728V

На карте


Условия сделки

Источник


Старт продаж

Возможно заинтересует