Top.Mail.Ru

Реутовская ул., д. 16

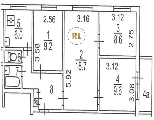
База каталог, Кол-во помещений: 287, II-49-08/Ю, Москва, Вешняки, Площадь парковки: 0, Пассажирский лифт: 8, От метро: 2760, Восточный, нет, Наименьшее кол-во этажей: 9, Наибольшее кол-во этажей: 9, Новокосино, Кол-во подъездов: 8, Год ввода в эксплуатацию: 1972, Кол-во нежилых помещений: 0, 4-комн, Кол-во жилых помещений: 287, дом 16, нет, да, нет, нет, нет, нет, Грузовых лифтов: 0, Год постройки: 1972, Реутовская улица, 37.837534, 55.735961
Свяжитесь со мной на счет цены
10 дн.
V55S735961L37S837534V

На карте


Условия сделки

Источник


Старт продаж

Возможно заинтересует