Top.Mail.Ru

Вешняковская ул., д. 6, к. 3

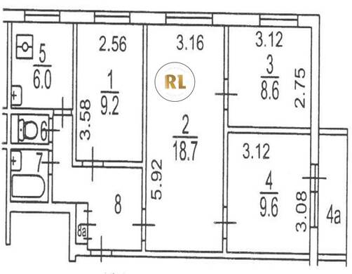
База каталог, Кол-во подъездов: 4, II-49-04/М вар Д, Москва, Вешняки, Площадь парковки: 910, Пассажирский лифт: 4, От метро: 2060, Восточный, да, Наименьшее кол-во этажей: 9, Наибольшее кол-во этажей: 9, Новогиреево, Кол-во помещений: 144, Кол-во нежилых помещений: 0, Год ввода в эксплуатацию: 1972, 4-комн, Кол-во жилых помещений: 144, D, дом 6, корпус 3, нет, да, да, да, нет, нет, Имеется, Грузовых лифтов: 0, Год постройки: 1972, Вешняковская улица, 37.824508, 55.736726
Свяжитесь со мной на счет цены
10 дн.
V55S736726L37S824508V

На карте


Условия сделки

Источник


Старт продаж

Возможно заинтересует