Top.Mail.Ru

Истринская ул., д. 10, к. 1

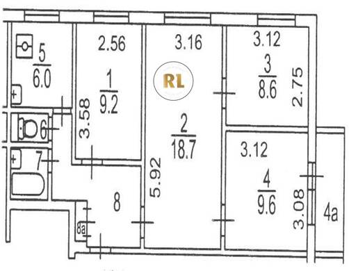
База каталог, Кол-во подъездов: 8, II-49-12, Москва, Кунцево, Площадь парковки: 0, Пассажирский лифт: 8, От метро: 1110, Западный, нет, Наименьшее кол-во этажей: 1, Наибольшее кол-во этажей: 9, Кунцевская, Кол-во помещений: 671, Кол-во нежилых помещений: 0, Год ввода в эксплуатацию: 1968, 4-комн, Кол-во жилых помещений: 671, Не присвоен, дом 10, корпус 1, нет, да, да, да, да, нет, Имеется, Грузовых лифтов: 8, Год постройки: 1968, Истринская улица, 37.435178, 55.737010
Свяжитесь со мной на счет цены
10 дн.
V55S737010L37S435178V

На карте


Условия сделки

Источник


Старт продаж

Возможно заинтересует