Top.Mail.Ru

улица Старый Гай, д. 14

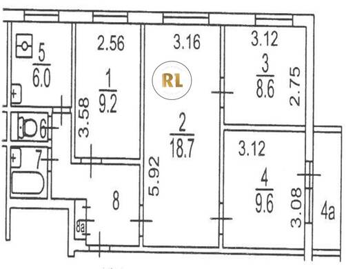
База каталог, Кол-во помещений: 142, II-49-06, Москва, Вешняки, Площадь парковки: 0, Пассажирский лифт: 4, От метро: 2030, Восточный, нет, Наименьшее кол-во этажей: 9, Наибольшее кол-во этажей: 9, Новогиреево, Кол-во подъездов: 4, Год ввода в эксплуатацию: 1971, Кол-во нежилых помещений: 0, 4-комн, Кол-во жилых помещений: 142, дом 14, нет, да, да, да, нет, нет, Грузовых лифтов: 0, Год постройки: 1971, улица Старый Гай, 37.827850, 55.738231
Свяжитесь со мной на счет цены
10 дн.
V55S738231L37S827850V

На карте


Условия сделки

Источник


Старт продаж

Возможно заинтересует