Top.Mail.Ru

Вешняковская ул., д. 3

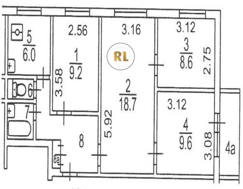
База каталог, Кол-во подъездов: 6, II-49-06, Москва, Вешняки, Площадь парковки: 0, Пассажирский лифт: 6, От метро: 1740, Восточный, нет, Наименьшее кол-во этажей: 9, Наибольшее кол-во этажей: 9, Новогиреево, Кол-во помещений: 215, Кол-во нежилых помещений: 0, Год ввода в эксплуатацию: 1972, 4-комн, Кол-во жилых помещений: 215, E, дом 3, нет, да, да, да, нет, нет, Имеется, Грузовых лифтов: 0, Год постройки: 1972, Вешняковская улица, 37.820592, 55.738830
Свяжитесь со мной на счет цены
10 дн.
V55S738830L37S820592V

На карте


Условия сделки

Источник


Старт продаж

Возможно заинтересует