Top.Mail.Ru

Рублевское шоссе, д. 16, к. 3

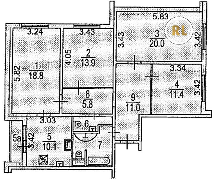
База каталог, Кол-во подъездов: 4, Отсутствует, КОПЭ, Москва, Кунцево, Площадь парковки: 0, Пассажирский лифт: 6, От метро: 1580, Западный, нет, Наименьшее кол-во этажей: 1, Наибольшее кол-во этажей: 22, Кунцевская, Кол-во помещений: 270, Кол-во нежилых помещений: 8, Год ввода в эксплуатацию: 1996, 4-комн, Кол-во жилых помещений: 262, Не присвоен, дом 16, корпус 3, нет, да, да, да, да, нет, Имеется, Грузовых лифтов: 4, Год постройки: 1996, Рублевское шоссе, 37.436041, 55.740999
Свяжитесь со мной на счет цены
10 дн.
V55S740999L37S436041V

На карте


Условия сделки

Источник


Старт продаж

Возможно заинтересует