Top.Mail.Ru

улица Старый Гай, д. 1, к. 2

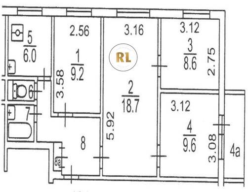
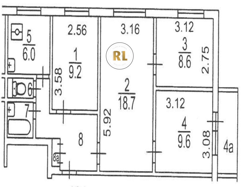
База каталог, Кол-во подъездов: 8, II-49Д, Москва, Вешняки, Площадь парковки: 0, Пассажирский лифт: 8, От метро: 2080, Восточный, нет, Наименьшее кол-во этажей: 9, Наибольшее кол-во этажей: 9, Новогиреево, Кол-во помещений: 287, Кол-во нежилых помещений: 0, Год ввода в эксплуатацию: 1971, 4-комн, Кол-во жилых помещений: 287, E, дом 1, корпус 2, нет, да, да, да, нет, нет, Имеется, Грузовых лифтов: 0, Год постройки: 1971, улица Старый Гай, 37.831129, 55.741156
Свяжитесь со мной на счет цены
10 дн.
V55S741156L37S831129V

На карте


Условия сделки

Источник


Старт продаж

Возможно заинтересует