Top.Mail.Ru

улица Старый Гай, д. 2, к. 4

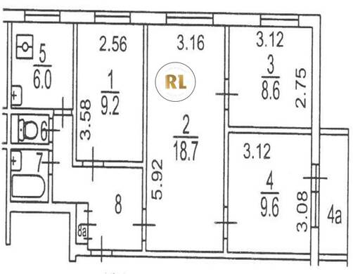
База каталог, Кол-во подъездов: 6, II-49-06, Москва, Вешняки, Площадь парковки: 0, Пассажирский лифт: 6, От метро: 1660, Восточный, нет, Наименьшее кол-во этажей: 9, Наибольшее кол-во этажей: 9, Новогиреево, Кол-во помещений: 215, Кол-во нежилых помещений: 0, Год ввода в эксплуатацию: 1971, 4-комн, Кол-во жилых помещений: 215, E, дом 2, корпус 4, нет, да, да, да, нет, нет, Имеется, Грузовых лифтов: 0, Год постройки: 1971, улица Старый Гай, 37.826988, 55.741541
Свяжитесь со мной на счет цены
10 дн.
V55S741541L37S826988V

На карте


Условия сделки

Источник


Старт продаж

Возможно заинтересует