Top.Mail.Ru

Кетчерская ул., д. 6, к. 1

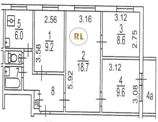
База каталог, Кол-во подъездов: 6, II-49Д, Москва, Вешняки, Площадь парковки: 0, Пассажирский лифт: 6, От метро: 1320, Восточный, нет, Наименьшее кол-во этажей: 9, Наибольшее кол-во этажей: 9, Новогиреево, Кол-во помещений: 214, Кол-во нежилых помещений: 0, Год ввода в эксплуатацию: 1971, 4-комн, Кол-во жилых помещений: 214, Не присвоен, дом 6, корпус 1, нет, да, да, да, да, нет, Грузовых лифтов: 0, Год постройки: 1971, Кетчерская улица, 37.821831, 55.742433
Свяжитесь со мной на счет цены
10 дн.
V55S742433L37S821831V

На карте


Условия сделки

Источник


Старт продаж

Возможно заинтересует