Top.Mail.Ru

Суздальская ул., д. 34, к. 1

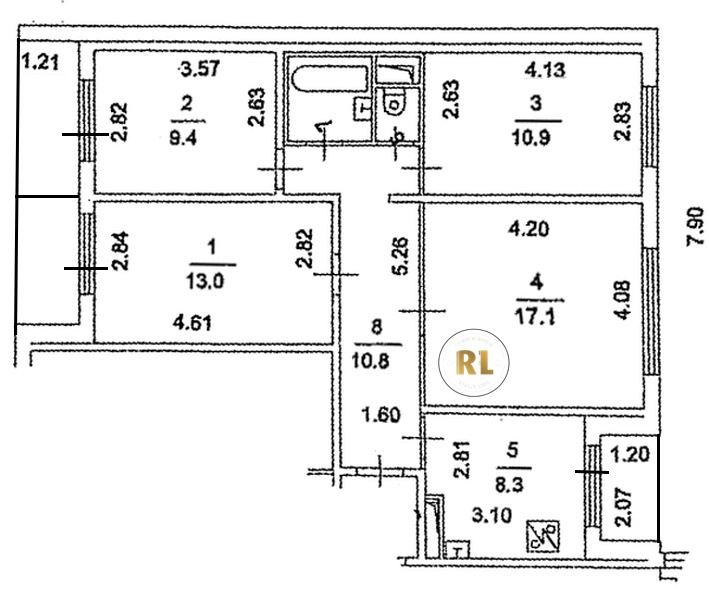
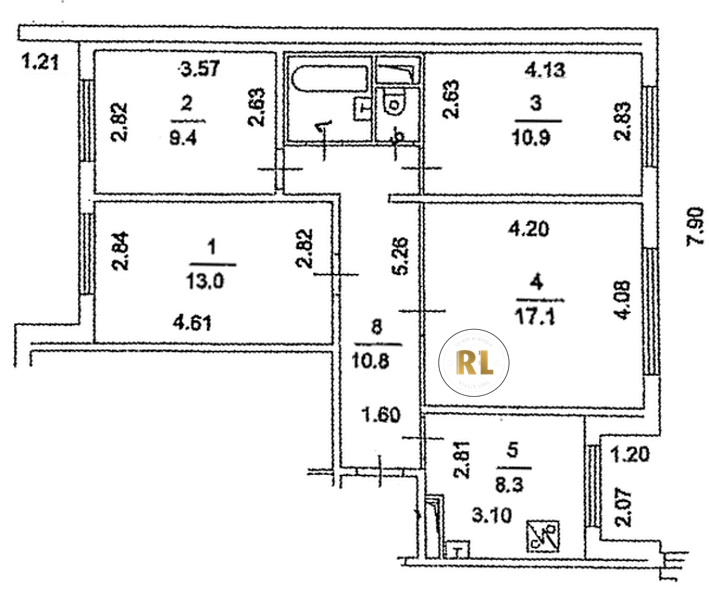
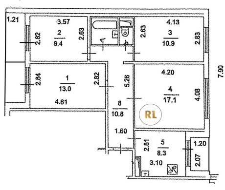
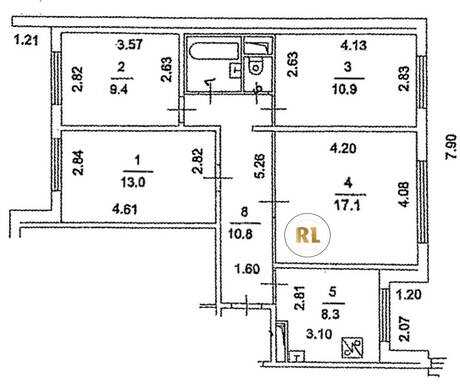
База каталог, Кол-во подъездов: 2, Имеется, П-30, Москва, Новокосино, Площадь парковки: 0, Пассажирский лифт: 4, От метро: 90, Восточный, нет, Наименьшее кол-во этажей: 14, Наибольшее кол-во этажей: 14, Новокосино, Кол-во помещений: 112, Кол-во нежилых помещений: 4, Год ввода в эксплуатацию: 1987, 4-комн, Кол-во жилых помещений: 108, E, дом 34, корпус 1, да, да, да, да, да, да, Имеется, Грузовых лифтов: 0, Год постройки: 1987, Суздальская улица, 37.867142, 55.744267
Свяжитесь со мной на счет цены
10 дн.
V55S744267L37S867142V

На карте


Условия сделки

Источник


Старт продаж

Возможно заинтересует